| объекты рядом: |  | дом |  | участок |
Артикул: 69220
Молоденово : продается коттедж 540 кв м с участком 13 соток
Можайское шоссе:
28 км от МКАД
- Показать на карте
- Распечатать
Молоденово. Коттедж бизнес-класса в стиле Райта, расположенный в деревне Молоденово. Просторный дом площадью 540,5 кв.м с гаражом на два автомобиля, возведён по индивидуальному проекту на ухоженном участке 13 соток с ландшафтным дизайном.
Живописное и экологически чистое место в Одинцовском районе, где сочетаются тишина природы и близость развитой инфраструктуры.
Дом выполнен из газобетонных блоков Bonolit D500 с утеплением 100 мм минеральной ватой. Облицовка фасада - немецкая клинкерная плитка в сочетании с декоративной штукатуркой. Кровля — мягкая с дополнительным утеплением сверх нормативов, окна — панорамные стеклопакеты REHAU с ламинацией.
Дом строился профессионально и с душой: надёжный фундамент, качественные материалы, продуман до мелочей. На всех этапах строительства обеспечен строгий технический контроль, что гарантирует надёжность и долговечность. Проектная дома – покупателю в подарок.
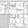
Планировка дома:
•1 этаж: просторная кухня-гостиная с выходом на террасу, кабинет, гостевая спальня с гардеробной и санузлом, отдельный санузел, постирочная, котельная, холл, зона хранения под лестницей, гараж на два машиноместа. Лестница с подсветкой ступеней.
•2 этаж: 4 спальни, каждая с гардеробной и санузлом, просторный холл и выход на балкон из хозяйской спальни. Всего — 5 гардеробных и 4 санузла.
Дом завершён на этапе финишной отделки в классическом лаконичном стиле и полностью готов к расстановке мебели и въезду. Благодаря продуманным планировочным решениям и грамотной отделке пространство легко трансформируется под индивидуальные предпочтения нового владельца.
Участок 13 соток (ИЖС) благоустроен: ухоженный газон, туи по периметру, вдоль улицы — высокие сосны, позади дома - красивые березы. Установлен кованый забор с автоматическими воротами.
Коммуникации:
Электричество 15 кВт, магистральный газ, собственная скважина, септик с высокой пропускной способностью.
Инженерные системы на высоком уровне: газовый котёл, бойлер косвенного нагрева, трубы – сшитый полипропилен, водяной тёплый пол с индивидуальной регулировкой температуры в каждой комнате, система водоочистки - чистая питьевая вода прямо из крана.
Деревня окружена лесом, чистый воздух и красивые виды из каждого окна. Респектабельные соседи! В шаговой доступности продуктовый магазин. В радиусе 5 км — Горки-10 и Успенское с полным набором инфраструктуры: супермаркеты (ВкусВилл, Перекрёсток, Мираторг и др.), торговые центры, рестораны, спортивные комплексы, аптеки, три школы и три детских сада. Работает доставка. В 10 минутах ходьбы строится новый парк площадью 80 Га.
Это предложение для тех, кто ищет просторный, современный и надёжный дом в окружении природы — с комфортом бизнес-класса и в готовом для жизни состоянии.
Безопасность сделки обеспечена высокими стандартами Гильдии Риелторов Москвы. Все сделки застрахованы АО "АльфаСтрахование"